Към съдържанието

Жилищна сграда в гр. Перник

1350



🏢 Представяме новострояща се сграда в жилищен компмекс в гр. Перник


🔑 Инвестиционна възможност | Модерна визия | Отлична локация

📍 Местоположение:

Намира се в тиха и добре организирана градска част на гр. Перник, в близост до зелени площи и с бърз достъп до главни пътни артерии и централната градска част.

Първата сграда от комплекса е вече с Акт 16, а втората - с Акт15.



🏗️ Характеристики на сградата:

  • Съвременно ново строителство с модерна архитектурна визия

  • Сградата е на 6 етажа

  • Озеленен двор, тераси и паркоместа

  • Подходяща за комбинирано използване – жилищно и бизнес предназначение


🔹 Разпределение на сградата:

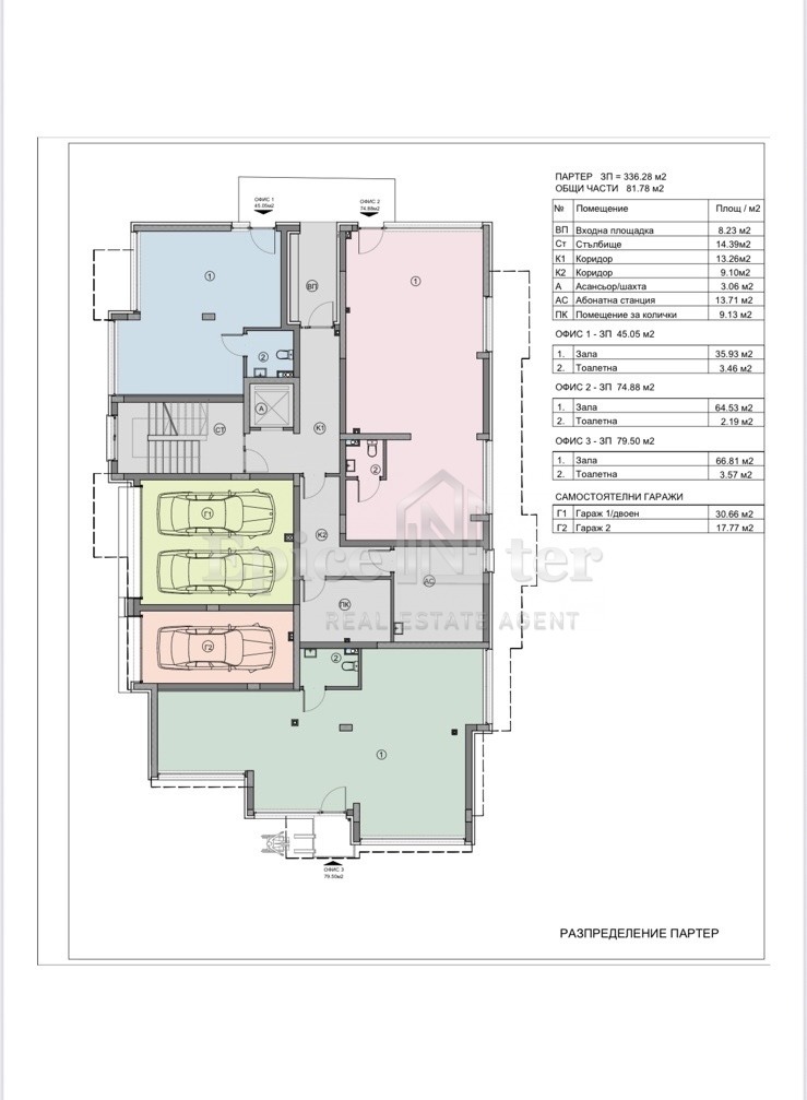
🔸 Партерен етаж:

  • 3 офиса (от 45 до 79 м²) с отделни санитарни възли

  • 2 самостоятелни гаража (30.66 м² и 17.77 м²)

  • 📐 Общо: 336.28 м² + 87.78 м² общи части


🔸 Втори жилищен етаж:

  • 5 апартамента:
    • 3 двустайни
    • 2 тристайни

  • Всички с дневна с кухненски бокс, спалня/и, баня с тоалетна и балкон

  • 📐 Площи от 59.27 до 78.39 м²

  • 📐 Общо: 381.92 м² + 45.37 м² общи части


Сградата продължава с още 4 жилищни етажа със сходно разпределение (при запитване може да се предостави пълна план-схема).

✅ Предимства на имота:

✔️ Функционални и просторни жилища

✔️ Възможност за отдаване под наем или продажба на отделни имоти

✔️ Офисни и търговски площи с директен достъп от улица

✔️ Самостоятелни гаражи и възможност за паркиране

✔️ Инвестиция с висок потенциал за доходност

✔️ Част от вече почти напълно завършен и обитаем комплекс

💶 Цена: от 1180 €/м²

 

📞За повече информация и огледи


𝟎𝟖𝟗𝟕𝟖𝟔𝟖𝟎𝟖𝟕


0895 024344

59 м2

2 спални

2 бани

Етажност: 6/6

Строителство: тухла

2025г.

Открийте

Свържете се с нас

Попълнете формата за да се свържете с нас